Jade Creek

Approved Residential Project

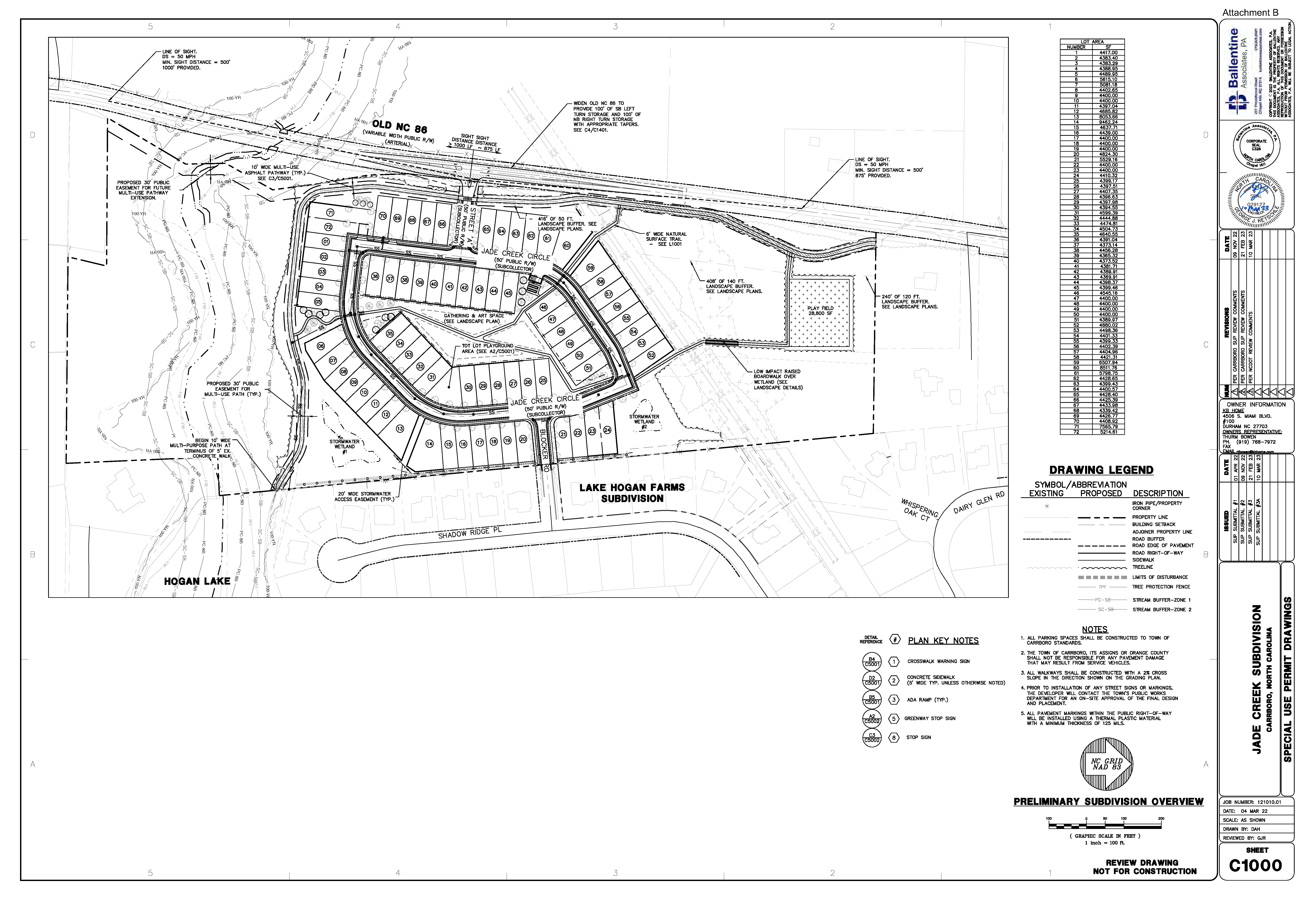
Jade Creek
  • Applicant: Ballentine Associates
  • Address: 8522 Old NC 86
  • Description 72 single family homes on 36.70 acres
  • Status: SUP-A and construction plans approved. Currently under construction.

For further information on this project, please visit the project page on PIPER by clicking here.